
【 新築戸建 】前2区画のラスト1邸。自由設計です。
| 最寄駅 | 所在地 | 面積 | 築年月 | 価格 | 間取り |
|---|---|---|---|---|---|
大阪メトロ谷町線「関目高殿」駅 徒歩 7分 | 大阪市旭区高殿3丁目 | 土地/58.19㎡ 建物/105.78㎡ | 2025年12月 | 4,680 万円 | 4 LDK |
大阪市旭区で不動産の購入や売却は株式会社アートホームお任せください。
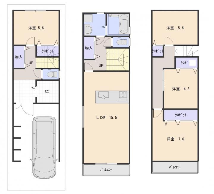
物件写真・間取り
物件概要
| 物件名 | アートスタイル旭区高殿3丁目 Ⅱ |
|---|
| 交通機関 | 大阪メトロ谷町線「関目高殿」駅 徒歩 7分分 大阪メトロ今里筋線「関目成育」 徒歩 11分分 |
|---|
| 所在地 | 大阪市旭区高殿3丁目 |
|---|
| 価格 | 4,680万円 |
|---|
| 間取り | 4 LDK |
|---|
| 土地権利 | 所有権 |
|---|
| 土地面積 | 58.19㎡ |
|---|
| 建物面積 | 105.78㎡ |
|---|
| 建物構造 | 木造 |
|---|
| 階 / 階数 | 3階建て |
|---|
| 築年月 | 2025年12月 |
|---|
| 都市計画 | 市街化区域 |
|---|
| 建ぺい率 | 60% |
|---|
| 容積率 | 200% |
|---|
| 駐車場 | 有 |
|---|
| 接道 |
|
|---|
| 地目 | 宅地 |
|---|
| 現況 | 更地 |
|---|
| 販売戸数 | 2 |
|---|
| 引渡し | 相談 |
|---|
| 取引態様 | 専属 |
|---|
| 物件番号 | 250613 |
|---|
| 情報登録日 | 2025年06月13日 |
|---|
| 情報更新日 |
|---|













